Sign up to get new listings emailed daily! JOIN SIGN IN
Jamie Perkins
REALTOR®, SRES
Facebook Icon 

140 Jabin Farm Road, Wright City, MO 63390

$550,000
  • 140 Jabin Farm Road, Wright City, MO 63390 Main Photo

46 Total Photos [Click to View All]

Active
BEDS4 BATHS3 full SQUARE FEET2,800 MLS#26012712
STATUSActive PROPERTY TYPEResidential - Single Family SUBDIVISIONZoar Ridge Estates SCHOOLWright City R-II

Property Description

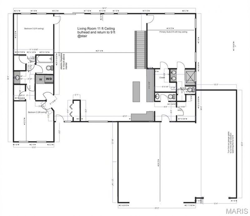
Discover the perfect blend of privacy and convenience with this to-be-built 1,800 sq ft split-bedroom ranch set on 3 wooded acres just minutes from Wentzville. The thoughtfully designed main floor will feature 3 spacious bedrooms and 2 full bathrooms, including a private primary suite, along with an open living area ideal for everyday living and entertaining.The walkout basement expands the home's possibilities with a 4th bedroom and full bathroom, perfect for guests, a home office, or multi-generational living. Surrounded by mature trees and peaceful scenery, this property offers the feel of a secluded retreat while still being a short drive to shopping, dining, and highway access in Wentzville.The home pictured is a representation of what is to be built. Finishes may be different. A rare opportunity to build your dream home in a private, wooded setting with room to breathe.

140 Jabin Farm Road | MLS# 26012712

This single family home located at 140 Jabin Farm Road, Wright City, MO 63390 is currently listed for sale with an asking price of $550,000. This property was built in 2026 and has 4 bedrooms and 3 full baths with 2800 sq. ft. Jabin Farm Road is located in the Zoar Ridge Estates subdivision within the Wright City R-II school district. Search Zoar Ridge Estates real estate on www.jamieperkinshomes.com today.

Property Features

Property Type: Residential - Single Family
Cooling: Central Air
Garage: 3
Heating: Electric
Home Style: Ranch
Lot Size: 3.00 Acres
Taxes: $356
Year Built: 2026

Feature Descriptions

Appliances: Stainless Steel Appliance(s), Dishwasher, Disposal, Exhaust Fan, Microwave, Electric Range, Electric Water Heater
Association Amenities: None
Days on Site: 27
Exterior: Attic/Crawl Hatchway(s) Insulated, Blown-In Insulat
HOA Fee: $270/ Annually
Lot: Back Yard, Front Yard, Gently Rolling, Heavy Woods
Parcel#: 198028000000001031
Sewer: Engineered Septic
SQFT. Above Grade: 1800
SQFT. Below Grade: 1000
Utilities: Electricity Available, Water Available
Water: Community, Well

Local Schools

High School: Wright City High
Middle School: Wright City Middle
Elementary School: Wright City East/West
School District: Wright City R-II

Listed By / Shown By

Listed By

Agency Name: Main St. Real Estate

Shown By

Agent Name: Jamie Perkins
Agent Phone: (636) 675-5758
Agency Title: RedKey Realty Leaders

IDX logo

Estimate Your Payment

Estimated Payment

$ 3,186.56 per month $2,996.48 Principal & Interest $29.67 Property Tax $160.42 Homeowner's Insurance

Change Payment Information

%
years/fixed
yearly
yearly (est.)
(Payments are an estimate and may vary by lender)

David Ames, Sales Manager, NMLS #738479

Disclaimer: All information deemed reliable but not guaranteed. All properties are subject to prior sale, change or withdrawal. Neither listing broker(s) or information provider(s) shall be responsible for any typographical errors, misinformation, misprints and shall be held totally harmless. Listing(s) information is provided for consumers personal, non-commercial use and may not be used for any purpose other than to identify prospective properties consumers may be interested in purchasing. Information on this site was last updated 04/02/2026. The listing information on this page last changed on 04/02/2026. The data relating to real estate for sale on this website comes in part from the Internet Data Exchange program of Delta Media Group MLS (last updated Thu 04/02/2026 2:51:47 AM EST) or MARIS MLS (last updated Thu 04/02/2026 12:11:26 AM EST). Real estate listings held by brokerage firms other than RedKey Realty Leaders may be marked with the Internet Data Exchange logo and detailed information about those properties will include the name of the listing broker(s) when required by the MLS. All rights reserved.

Listing data and photos distributed by MLSGRID
Member Participants (and their affiliated licensees, if applicable) shall indicate on their websites that IDX information is provided exclusively for consumers’ personal non-commercial use, that it may not be used for any purpose other than to identify prospective properties consumers may be interested in purchasing, that the data is deemed reliable but is not guaranteed by MLS GRID, and that the use of the MLS GRID Data may be subject to an end user license agreement prescribed by the Member Participant’s applicable MLS if any and as amended from time to time. MLS GRID may, at its discretion, require use of other disclaimers as necessary to protect Member Participant, and/or their MLS from liability.
Based on information submitted to the MLS GRID. All data is obtained from various sources and may not have been verified by broker or MLS GRID. Supplied Open House Information is subject to change without notice. All information should be independently reviewed and verified for accuracy. Properties may or may not be listed by the office/agent presenting the information.



Privacy Policy / DMCA Notice / ADA Accessibility

Login to My Homefinder

Pixel